SCALA
LOCALISATION:
Genève, Suisse
PROGRAMME:
complexe scolaire & sportif
SURFACE: 7 000 m²
GENRE DE PROCEDURE:
concours, procédure ouverte
projet lauréat
ANNEE: 2023
ETAT: en cours
MAITRISE D’OUVRAGE:
Ville de Genève
Comment s’inscrire dans un contexte à la
fois résidentiel et urbain, développé sur la base d’une ville jardin du début
du 20eme siècle? Comment synthétiser ces éléments et dialoguer tant avec
l’aspect urbain qu’avec une végétation dessinée et «contenue»? Comment
entrelacer l’échelle de l’immeuble d’habitation avec le bâti pavillonnaire? Ces
questions ont été considérées les plus grands défis contextuels donnant forme à
la nouvelle école
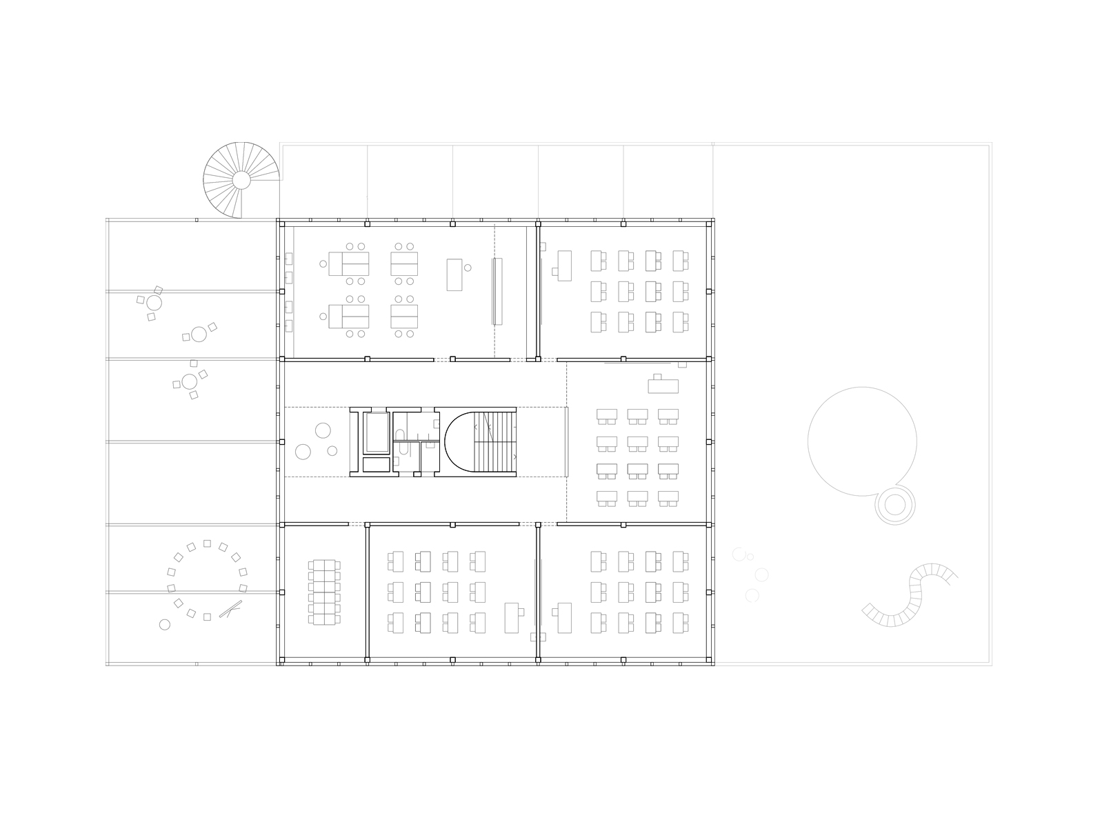
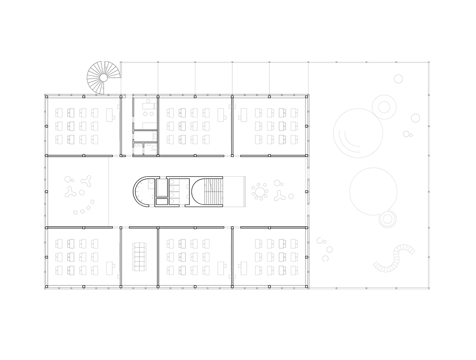
Le site de la nouvelle école se composera de zones distinctes mais complémentaires qui crée une transition graduelle entre la ville et le jardin. La figure du bâtiment est composée d’un socle, contenant la salle de sport qui s’étend vers le sud, vers la rue et renforce ainsi l’aspect public du bâtiment, puis d’un volume retiré vers le nord-ouest du site en réponse à l’échelle pavillonnaire. Ce geste permet de compléter naturellement le front urbain de l’avenue de Riant-Parc en s’alignant aux immeubles de logements, tout en reprenant la typologie des pavillons / villas, qui se retirent vers le nord-ouest des parcelles et libèrent ainsi des espaces extérieurs généreux vers le sud-est.
Le projet propose une diversité d’ambiances et de qualités des espaces extérieures directement liés entre eux. Un escalier extérieur est conçu en tant que colonne vertébrale du réseau et connecte tous les espaces.
Le site de la nouvelle école se composera de zones distinctes mais complémentaires qui crée une transition graduelle entre la ville et le jardin. La figure du bâtiment est composée d’un socle, contenant la salle de sport qui s’étend vers le sud, vers la rue et renforce ainsi l’aspect public du bâtiment, puis d’un volume retiré vers le nord-ouest du site en réponse à l’échelle pavillonnaire. Ce geste permet de compléter naturellement le front urbain de l’avenue de Riant-Parc en s’alignant aux immeubles de logements, tout en reprenant la typologie des pavillons / villas, qui se retirent vers le nord-ouest des parcelles et libèrent ainsi des espaces extérieurs généreux vers le sud-est.
Le projet propose une diversité d’ambiances et de qualités des espaces extérieures directement liés entre eux. Un escalier extérieur est conçu en tant que colonne vertébrale du réseau et connecte tous les espaces.
